Logo Gabari Prod

Commentaires clients 4.9

Bien concevoir le plan de sa cuisine.


De nombreuses possibilités s'offrent à vous pour réaliser le plan de votre cuisine. Vous avez décidé de le réaliser vous même, de vous passer des services d'un cuisiniste professionnel, sachez que leurs conseils sont toujours avisés et issus de leur expérience. Il est important que vous suiviez certaines règles pour ne pas le regretter. Ci après, vous trouverez quelques idées ou conseils pour bien choisir la configuration de votre cuisine.

credence-muroir-deco-interieur-573075

Quelques règles à respecter pour votre implantation de cuisine.

Votre cuisine doit être agréable à vivre, fonctionnelle et décorative. Ce que l'on appelle triangle d'activité est un espace dans lequel on va trouver les éléments suivants. L'évier, les plaques de cuisson et le réfrigérateur. Dans ce triangle, vous effectuerez l'essentiel des vos activités. Nous vous recommandons une distance à peu près égale entre ces trois éléments. La poubelle, le lave-vaisselle et l'évier doivent être regroupés afin de ne pas avoir à traverser la cuisine avec les déchets. Ainsi, vous gérerez facilement le propre et les déchets. Pour la hauteur du plan de travail, n'hésitez pas à le porter à 90 centimètres de hauteur. Si vous êtes grands, vous pouvez passer à 95 centimètres de hauteur. Le confort n'en sera que meilleur. Intégrez dans votre plan de cuisine les éclairages, les prises de courant pour un éclairage bien adapté. N'oubliez pas des options très tendance, les éclairages ou décorations à led.

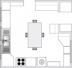
cuisine plan

Autres conseils

Première chose à prendre en compte, cela parait évident, mais... La forme de votre cuisine, ses dimensions, les ouvertures... Ainsi vous pourrez définir le plan de cuisine idéal ou le plus adapté à votre pièce (voir ci-dessous). Pensez aux déplacements que vous effectuerez, le plan doit être fonctionnel et tenir compte de ces impératifs. les rangements doivent être en nombre suffisant et positionnés à bonne hauteur. N'hésitez pas à vous doter d'un logiciel cuisine 3D, vous pourrez visualiser le rendu final.

Les différents types de plans de cuisine

La cuisine en ligne(ou en L) est la formule adaptée aux cuisines étroites et longues. A noter que dans ce cas, vous pourrez opter pour une crédence murale en inox miroir, cela agrandira la largeur de votre espace. Le plan en parallèle sera possible si votre cuisine est plus large. Si votre cuisine est ouverte vers une autre pièce, le plan en U est une très bonne solution. Assez courant, le plan e L s'adapte aux pièces de 12 mètres carrés ou plus dont la forme est proche du carré. Enfin, si l'espace le permet, le plan de cuisine intégrant un îlot central est très en vogue.

Ce qu'il faut éviter

Faites attention à ne pas intégrer la plaque de cuisson ou l'évier dans un angle. Ne sur-dimensionnez pas certains éléments au détriment d'autres. Par exemple, si vous intégrez un grand évier, vérifiez qu'il vous reste une surface suffisante sur votre plan de travail. Faites attention à bien positionner les divers éléments techniques. Les raccordements électriques pour les fours et plaques de cuisson sont différents de ceux des prises, si vous optez pour une cuisson gaz, positionnez bien votre arrivée. Les prises électriques doivent être nombreuses, et les différents raccordements pensés avant l'installation de la cuisine.